Khi nhắc đến máy quét A0, nhiều người chỉ nghĩ đến khả năng scan bản vẽ kỹ thuật hay sơ đồ kiến trúc khổ lớn. Tuy nhiên, ít ai biết rằng máy quét A0 có thể xử lý đa dạng nhiều loại giấy tờ hơn thế. Trong bài viết này, Vietbis sẽ giúp bạn hiểu rõ máy quét A0 scan được những loại giấy nào, để từ đó lựa chọn thiết bị phù hợp nhất cho nhu cầu công việc.
Máy quét A0 là gì?
.jpg)
Máy quét A0 là thiết bị chuyên dùng để số hóa tài liệu khổ lớn, đặc biệt là các bản vẽ kỹ thuật, bản đồ địa chính, poster quảng cáo hay tài liệu thiết kế. Với khả năng scan khổ giấy tối đa lên đến 841 x 1189 mm (A0), dòng máy này thường có tốc độ cao, độ phân giải lớn và hỗ trợ nhiều tính năng xử lý hình ảnh.
Máy quét A0 scan được những loại giấy nào?
Dưới đây là danh sách các loại giấy mà máy quét A0 có thể scan dễ dàng:
Máy quét A0 là gì?
.jpg)
Máy quét A0 là thiết bị chuyên dùng để số hóa tài liệu khổ lớn, đặc biệt là các bản vẽ kỹ thuật, bản đồ địa chính, poster quảng cáo hay tài liệu thiết kế. Với khả năng scan khổ giấy tối đa lên đến 841 x 1189 mm (A0), dòng máy này thường có tốc độ cao, độ phân giải lớn và hỗ trợ nhiều tính năng xử lý hình ảnh.
Máy quét A0 scan được những loại giấy nào?
Dưới đây là danh sách các loại giấy mà máy quét A0 có thể scan dễ dàng:
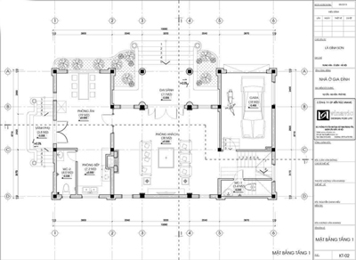
1. Bản vẽ kỹ thuật (CAD, AutoCAD)
Đây là ứng dụng phổ biến nhất. Máy quét A0 có thể số hóa:
Đây là ứng dụng phổ biến nhất. Máy quét A0 có thể số hóa:
- Bản vẽ kỹ thuật kiến trúc
- Bản vẽ cơ khí, điện
- Sơ đồ hệ thống, mặt bằng công trình
Hầu hết bản vẽ dạng này thường in trên giấy in kỹ thuật 80-100gsm hoặc giấy couche.
2. Bản đồ địa chính, bản đồ quy hoạch
2. Bản đồ địa chính, bản đồ quy hoạchVới độ chính xác cao và khả năng quét từng chi tiết nhỏ, máy quét A0 rất phù hợp để số hóa:
- Bản đồ địa chính
- Bản đồ quy hoạch tổng thể
- Sơ đồ đất đai, bản đồ địa hình
Kể cả bản đồ cũ in trên giấy mỏng, giấy can hoặc giấy tráng nhựa, máy vẫn scan được với chế độ thích hợp.
.jpg)
.jpg)
3. Áp phích (poster), tranh ảnh khổ lớn
Nếu bạn làm việc trong lĩnh vực quảng cáo hay nghệ thuật, máy quét A0 giúp scan:
Nếu bạn làm việc trong lĩnh vực quảng cáo hay nghệ thuật, máy quét A0 giúp scan:
- Poster quảng cáo, banner
- Tranh nghệ thuật, tranh vẽ tay khổ lớn
- Ảnh chụp, bản in mỹ thuật
Máy có thể xử lý giấy couche, giấy ảnh, canvas và một số loại giấy mỹ thuật.
4. Giấy can, giấy trong suốt
Các bản vẽ kỹ thuật cũ hoặc bản đồ thường được in trên giấy can (tracing paper). Máy quét A0 chuyên dụng như Colortrac SmartLF, KIP hay Ricoh đều có chế độ scan giấy mỏng, trong suốt mà không làm nhòe hình ảnh.
Các bản vẽ kỹ thuật cũ hoặc bản đồ thường được in trên giấy can (tracing paper). Máy quét A0 chuyên dụng như Colortrac SmartLF, KIP hay Ricoh đều có chế độ scan giấy mỏng, trong suốt mà không làm nhòe hình ảnh.
5. Giấy cứng, bìa carton mỏng
(1).jpg)
Một số dòng máy A0 cao cấp hỗ trợ scan:
- Bìa carton mỏng (~1,6 mm trở xuống)
- Giấy bìa cứng dùng trong thiết kế, in ấn
Tuy nhiên, để đảm bảo không làm hỏng thiết bị, bạn nên kiểm tra thông số độ dày giấy tối đa cho phép của từng model.
Những lưu ý khi scan tài liệu bằng máy quét A0
Để đảm bảo chất lượng scan và bảo vệ giấy tờ, bạn cần lưu ý:
Những lưu ý khi scan tài liệu bằng máy quét A0
Để đảm bảo chất lượng scan và bảo vệ giấy tờ, bạn cần lưu ý:
- Kiểm tra độ dày, chất liệu giấy trước khi scan
- Chỉnh đúng chế độ scan (giấy mỏng, giấy can, giấy dày) phù hợp
- Tránh scan giấy nhăn, rách vì dễ kẹt giấy hoặc scan mờ
- Vệ sinh mặt kính, đầu quét định kỳ để tránh vệt bẩn trên file scan
Dịch vụ cho thuê máy scan A0 tại VIETBIS
Nếu bạn cần scan khối lượng lớn bản vẽ, bản đồ hay tài liệu khổ A0 nhưng chưa muốn đầu tư máy riêng, Vietbis cung cấp dịch vụ cho thuê máy scan A0 linh hoạt, tối ưu chi phí:
Nếu bạn cần scan khối lượng lớn bản vẽ, bản đồ hay tài liệu khổ A0 nhưng chưa muốn đầu tư máy riêng, Vietbis cung cấp dịch vụ cho thuê máy scan A0 linh hoạt, tối ưu chi phí: Thuê máy scan A0 theo ngày, tuần hoặc tháng
Không giới hạn số lượng trang scan
Miễn phí lắp đặt, hướng dẫn sử dụng tận nơi
Hỗ trợ kỹ thuật 24/7 trong suốt thời gian thuê
Các dòng máy A0 Vietbis đang cung cấp gồm Colortrac SmartLF SC, KIP, Ricoh đảm bảo scan nhanh, sắc nét, hỗ trợ đa dạng loại giấy (bản vẽ kỹ thuật, bản đồ, poster…).
Bạn nhận được gì khi thuê máy scan A0 tại Vietbis?
✅ Tiết kiệm chi phí đầu tư thiết bị
✅ Chủ động thời gian sử dụng theo dự án
✅ Đội ngũ kỹ thuật của Vietbis hỗ trợ tận tâm
✅ Chất lượng bản scan đạt chuẩn lưu trữ số hóa
👉 Liên hệ ngay Vietbis để nhận báo giá dịch vụ cho thuê máy scan A0 tốt nhất và trải nghiệm giải pháp số hóa chuyên nghiệp!
----------------------------
Bạn nhận được gì khi thuê máy scan A0 tại Vietbis?
✅ Tiết kiệm chi phí đầu tư thiết bị
✅ Chủ động thời gian sử dụng theo dự án
✅ Đội ngũ kỹ thuật của Vietbis hỗ trợ tận tâm
✅ Chất lượng bản scan đạt chuẩn lưu trữ số hóa
👉 Liên hệ ngay Vietbis để nhận báo giá dịch vụ cho thuê máy scan A0 tốt nhất và trải nghiệm giải pháp số hóa chuyên nghiệp!
----------------------------
VIETBIS - Dịch vụ tiên phong, đơn vị cung cấp và cho thuê sản phẩm máy scan A0. Mọi thông tin chi tiết vui lòng liên hệ:


- Công ty TNHH Việt Bis
- Office: 96 Định Công, Phương Liệt, Thanh Xuân, Hà Nội
- Hotline: 089 6688 636


.jpg)